Kaya Krisolito
Views of the Caribbean Sea, steady breeze, tranquility and asphalted streets are the highlights of this sought-after residential neigbourhood: Santa Barbara. In the secluded south-western corner of Santa Barbara you’ll encounter this traditional 3 bedroom family home with a tropical garden on a spacious freehold land lot of 849m2. Almost at the border of a green zone.
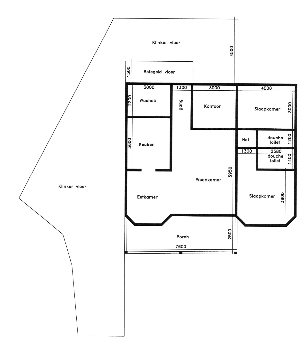
The lot is shaped like a triangle and the home sits on the front half of the property in the center. A pedestrian gate with a paved path will lead you to the front porch & main entrance of the home. West there’s also a car-gate with a paved driveway that leads you to a carpark which fits 2 to 3 vehicles. From this side of the home there’s also a side-entrance which leads you to the kitchen & pantry.  
 The paved floor wraps around all the way to the backside of the property, covering a total of 122m2 in surface. Offering a nice outdoor spacefor you to enjoy the exteriors of your property. Shaded by mature trees & the whole garden has white gravel stones. The fence is half way up of concrete blocks, with the remaining half wooden planks (front).
The home itself has a total living area of 130m2 and is constructed out of brick & concrete with high beamed ceilings and roof tiles. It has 2 bedrooms, 1 office (can be turned into a 3rd bedroom), 2 bathrooms, hal, living room, dining room, kitchen, laundry room/pantry, front-porch and beneath it a water-reservoir of 20m3 that catches rainfall.
The floors are tiled by light gray ceramic tiles. Indoor walls are white, kitchen has an stainless steel frame with mdf cabinets and corian cooktop. The high ceiling are of T1-11 multiplex plates and beams both of dark wood color.
The home has been constructed in ’94 and finds itself in a good state. It might need some personal adjustments & cosmetic love.
- Santa Barbara 
- Zoning Residential 2 
- Tropical Bonairean home 
- Spacious garden 
- Water-reservoir 
- Carpark & paved floor 122m2 / sq ft 
- Total living area 130m2 / sq ft 
- Lot size 849m2 / sq ft 
- Type of land: Freehold land 
- Registered as: 4-A-915 
- Pin drop: 4-A-915 
- Buyers costs (5% transfertax & approx. 2% notary costs) 
$385.000
Schedule a viewing
Walk around, inspect the property, assess the ambiance & familiarize with the neighborhood.
If you are not on the island, we can conveniently video call each other so you can explore our properties from anywhere in the world!
 
               
               
               
               
               
               
               
               
               
               
               
               
               
               
               
               
               
               
               
               
              